Progetto
Scuola Cagnucci - Ascoli Piceno
LAVORO: “Interventi di ricostruzione delle scuole di Ascoli Piceno” – “Adeguamento sismico della Scuola primaria Cagnucci” Ordinanza Speciale n.3 del 06.05.2021 ex articolo 11, comma 2, del decreto legge 76 del 2020.
Informazioni sul progetto
Committente
Progetto
Incarico
PROGETTAZIONE E COORDINAMENTO SICUREZZA
Il progetto
L’edificio scolastico, ubicato in Via Napoli, nel Comune di Ascoli Piceno ed identificato al Catasto Urbano al Foglio 104 Part. 1316 ricade in zona urbanistica “aree ed attrezzature per l’istruzione” normata dall’art.25 delle NTA del Piano Regolatore Generale del Comune di Ascoli Piceno.
Il Progetto decretato dall’USR (Commissario Straordinario del Governo per la riparazione, la ricostruzione, l’assistenza alla popolazione e la ripresa economica dei territori delle regioni Abruzzo, Lazio, Marche e Umbria interessati dagli eventi sismici verificatisi a far data dal 24 agosto 2016), si suddivide di n.3 tipologie di intervento volte alla “rigenerazione” totale del fabbricato:
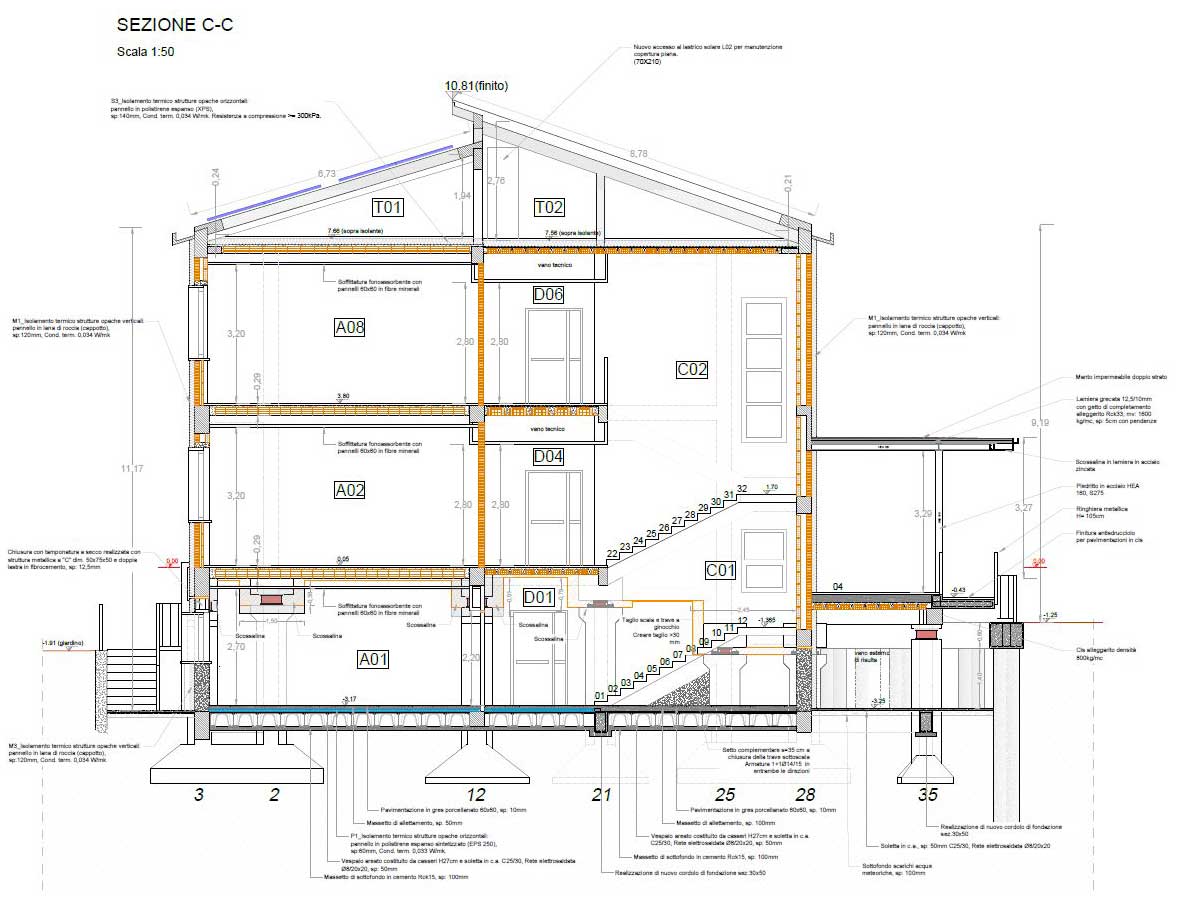
Intervento di Adeguamento Sismico
Per l’intervento di adeguamento sismico si è scelto di utilizzare una tecnica di protezione passiva in grado di garantire
la fruibilità della struttura dall’utenza anche a seguito di terremoti medio forti.
Il progetto prevede l’installazione di dispositivi di isolamento del tipo HDRB –High Damper RubberIsolator, in
grado di garantire una adeguata rigidezza verticale oltre ad un buon smorzamento aggiuntivo e
quindi in grado anche di limitare gli spostamenti.
Riqualificazione architettonica
Delle finiture e adeguamento degli impianti esistenti


